Über mich
Mein Deckname ist MARTHA und meine Mission ist strengstens geheim. Die Fahndung läuft. Bist du mein partner in crime?
In den Hängen des Küniglbergs, umgeben von Wald und einer schmucken Villensiedlung habe ich meinen Stützpunkt aufgeschlagen. Im Dachgeschoss den nächsten Auftrag planen, während dir die Welt zu Füßen liegt. In der Garage unerkannt an einer neuen Agentenausstattung tüfteln. Undercover im Garten das Sudoku lösen oder die Sauna als Beweisstück beschlagnahmen. Ganz egal, welches Motiv du hast – dein Alibi ist wasserdicht.
Ist meine Mission hiermit beendet? Wenn du mich ausspionieren möchtest, organisiere dir einen Besichtigungstermin mit Christian & Max.
Meine Umgebung
Mein Bezirk Hietzing beheimatet 54.040 Einwohner und ist 37,7 km2 groß. Der 13. Bezirk ist außerdem der grünste Wiener Bezirk, Schönbrunner Schlosspark, Wienerwald, Lainzer Tiergarten u.v.m. Meine wunderbare Villengegend hat zudem die beste Infrastruktur auf der nahe gelegenen Hietzinger Hauptstraße. Die innere Stadt ist mit dem öffentlichen Verkehr gut zu erreichen.
rebels-Tipp! Für alle Feinschmecker*innen gibt es gleich in der Nähe "Delikatessen Rumpel". Der Einkauf ist ein kulinarisches Erlebnis für wirklich alle Sinne. Hier treffen sich interessante Persönlichkeiten von Hietzing auf einen Tratscher. Die Schmankerln gibts natürlich auch ToGo.
Infrastruktur: Apotheken, Banken, Ärzte und Geschäfte des täglichen Bedarfs sind in zehn Minuten Fußweg erreichbar.
Bezirk Hietzing: https://www.wien.gv.at/bezirke/hietzing/
Öffentliche Anbindung:
- Straßenbahn 60
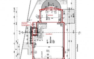
MARTHA ist ein Looshaus und nicht nur von Außen ein richtiger Hingucker. 260 m2 sind auf vier verschiedenen Ebenen aufgeteilt und jeder Stock hat sein eigenes stilvolles Design: Vom Erdgeschoss mit Sportraum und Saune, rauf zum oktogonalem Zimmer mit Terrasse, über den großen Koch- und Wohnbereich mit Wintergarten und Steg zum Garten bis hin zur Kuppel - ein Dachgeschoss mit Balkon. Die großzügige Garage bietet Platz für bis zu drei Autos. MARTHA ist ideal geeignet für Liebhaber*innen von architektonischem Design, die auf der Suche nach einem ruhige aber extravaganten Zuhause sind.